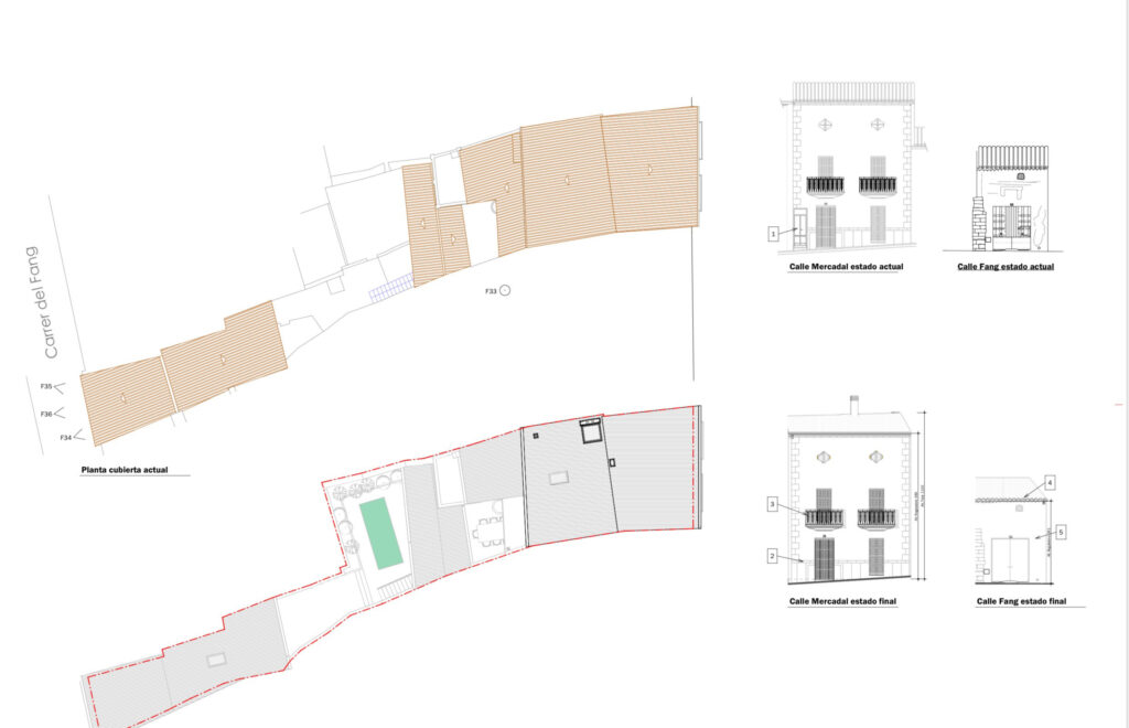
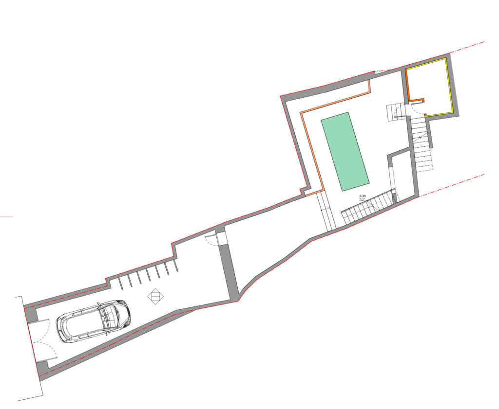
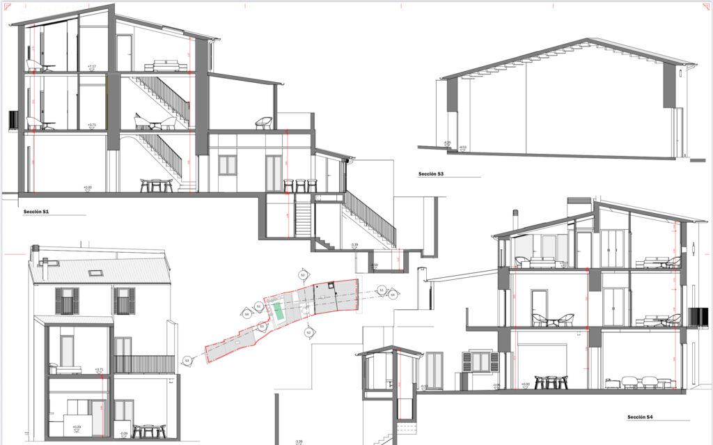
House plan
- Ground Floor: Entrance hall, living room, dining area, kitchen, utility room, dining patio, guest WC.
- First Floor: 2 en-suite bedrooms with ample wardrobes and private balconies.
- Second Floor: 1 en-suite bedroom plus large office/living room (convertible into an additional bedroom).
- Garden & Garage Level: Swimming pool with outdoor shower & WC, landscaped garden, garage for two vehicles.





